芽室町の広々とした戸建貸家☆
芽室西1条貸家
- 賃料
- 7.8万円
- 一戸建
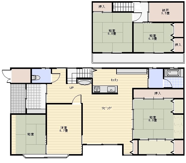
- 間取
- 5LDK
- 敷金
- 15.6万円
- 仲介手数料
- 85800円
|
|
|
|
| 所在地 | 北海道河西郡芽室町西1条2丁目 芽室西1条貸家 |
|---|---|
| 交通 | バス(十勝バス 芽室駅前停 徒歩4 分) |
| 築年月 | 1998/9 | 新築/中古 | |
|---|---|---|---|
| 建物面積 | 151.11m² | 計測方式 | |
| バルコニー | m² | 向き | 南 |
| 建物階数 | 地上 2階 | 部屋階数 | 階 |
| 部屋・区画番号 | 総戸/区画数 | 1 | |
| 建物構造 | 木造 | ||
| 間取内容 | |
||
| 住宅保険料 | 10710円 1年 | 修繕積立金 | 円 |
| 駐車場 | 取引態様 | 仲介 | |
| 引渡/入居時期 | 現況 | ||
| 周辺環境 | |||
| 設備・条件 | 排水下水 排水その他 バス専用 トイレ専用 バス・トイレ別 シャワー 電気コンロ システムキッチン 給湯 洗髪洗面化粧台 暖房 石油暖房 エアコン 温水洗浄便座 カウンターキッチン 駐車場有 ユニットバス | ||
| 物件番号 | |||
Loading...
※物件掲載内容と現況に相違がある場合は現況を優先と致します。
アルゼ不動産
〒080-0015帯広市西5条南24丁目15番地
TEL.0155-67-5072
FAX.0155-67-5073
info@allze.net
会員社団法人 全国宅地建物取引業保証協会 会員
社団法人 北海道宅地建物取引業協会
北海道知事 十勝(4)第694号


















